Bản vẽ thiết kế cửa hàng tiện lợi là yếu tố quan trọng khi xây dựng cửa hàng tiện lợi, giúp thu hút khách hàng và tối ưu hóa doanh thu. Vì thế, JAMA HOME sẽ cùng bạn khám phá hơn 10 mẫu bản vẽ thiết kế đẹp và khoa học, đồng thời tìm hiểu rõ hơn các thông tin chi tiết về bản vẽ trong bài viết sau đây.
Tiêu chuẩn của một bản vẽ thiết kế cửa hàng tiện lợi
Việc tuân thủ các tiêu chuẩn là vô cùng quan trọng khi thiết kế một cửa hàng tiện lợi. Những tiêu chuẩn này không chỉ đảm bảo tính thẩm mỹ mà còn giúp tối ưu hóa không gian, tăng hiệu quả kinh doanh và đáp ứng các quy định pháp lý. Hãy cùng tìm hiểu chi tiết về các tiêu chuẩn cần lưu ý khi thiết kế cửa hàng tiện lợi.
>>> Đọc thêm: Các mẫu bản vẽ thiết kế shop thời trang giúp thu hút khách hàng
Diện tích và bố cục tổng thể
Khi lên bản vẽ thiết kế cửa hàng tiện lợi, yếu tố đầu tiên cần quan tâm chính là diện tích và bố cục tổng thể. Sau khi xác định rõ ràng diện tích cửa hàng, thì đến thiết kế bố cục tổng thể sao cho tận dụng tối đa không gian, tạo sự thuận tiện cho khách hàng khi di chuyển và mua sắm.
Các khu vực chính trong cửa hàng bao gồm: khu vực trưng bày sản phẩm, quầy thanh toán, kho hàng, và khu vực dịch vụ (nếu có). Việc phân chia không gian hợp lý sẽ giúp tối ưu hóa luồng di chuyển của khách hàng, từ đó tăng khả năng tiếp cận sản phẩm và thúc đẩy doanh số bán hàng.
Hệ thống ánh sáng và thông gió
Ánh sáng và thông gió đóng vai trò quan trọng trong việc tạo ra không gian mua sắm thoải mái hơn. Khi thiết kế hệ thống chiếu sáng, cần chú ý đến việc kết hợp ánh sáng tự nhiên và nhân tạo một cách hài hòa.
Sử dụng đèn LED tiết kiệm năng lượng với độ sáng phù hợp, tập trung vào các khu vực trưng bày sản phẩm chính. Ngoài ra cần đảm bảo hệ thống thông gió tốt để duy trì nhiệt độ và độ ẩm phù hợp trong cửa hàng. Một không gian được chiếu sáng tốt và thoáng mát sẽ tạo cảm giác dễ chịu cho khách hàng, khuyến khích họ ở lại lâu hơn và mua sắm nhiều hơn.
Kệ trưng bày và bố trí sản phẩm
Thiết kế và bố trí kệ trưng bày là một trong những yếu tố quan trọng nhất trong bản vẽ thiết kế cửa hàng. Kệ trưng bày cần được thiết kế với chiều cao phù hợp để đảm bảo khách hàng có thể dễ dàng tiếp cận sản phẩm.
Bố trí sản phẩm theo nhóm và danh mục rõ ràng, đặc biệt với các sản phẩm bán chạy thì nên đặt ở vị trí dễ thấy và dễ lấy. Ngoài ra, cần đảm bảo có đủ không gian đi lại giữa các kệ đem đến sự thoải mái cho khách hàng khi đi mua sắm.
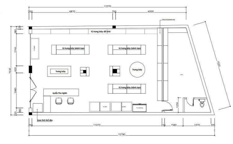
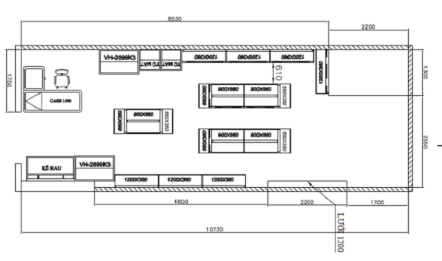
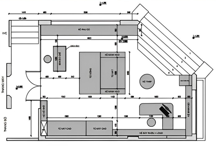
Khám phá top 10+ mẫu bản vẽ thiết kế cửa hàng tiện lợi mới nhất
Trong phần này, chúng ta đã tổng hợp hơn 10 mẫu bản vẽ thiết kế cửa hàng tiện lợi đẹp và đảm bảo tính khoa học, chuyên nghiệp cho bạn tham khảo lựa chọn. Các bản vẽ này được thiết kế với sự chú trọng đến việc tạo ra trải nghiệm mua sắm thoải mái và tiện lợi cho khách hàng.
Chúng không chỉ bao gồm việc sắp xếp hàng hóa một cách hợp lý mà còn tính toán đến việc bố trí các khu vực như quầy thu ngân, khu vực trưng bày sản phẩm và lối đi để khách hàng có thể dễ dàng di chuyển trong cửa hàng. Những yếu tố này không chỉ giúp thu hút khách hàng mà còn tối ưu hóa quy trình làm việc của nhân viên, từ đó nâng cao hiệu suất làm việc.










>>> Đọc thêm: Hơn 15 bản vẽ thiết kế quán cà phê cực đẹp và nổi bật bạn nên biết
Tại sao nên có bản vẽ thiết kế cửa hàng tiện lợi?
Việc có một bản vẽ thiết kế cửa hàng tiện lợi chi tiết và chuyên nghiệp không chỉ là một bước quan trọng trong quá trình xây dựng và phát triển cửa hàng mà còn mang lại nhiều lợi ích thiết thực. Hãy cùng tìm hiểu lý do tại sao bạn nên đầu tư vào việc có một bản vẽ thiết kế cho việc xây dựng một cửa hàng tiện lợi.
Tối ưu hóa không gian và luồng di chuyển
Một trong những lý do quan trọng nhất để có bản vẽ thiết kế cửa hàng tiện lợi là khả năng tối ưu hóa không gian và luồng di chuyển của khách hàng. Một bản vẽ thiết kế cửa hàng chi tiết giúp bạn hình dung rõ ràng về cách bố trí các khu vực trong cửa hàng một cách hợp lý nhất.
Thông qua bản vẽ, bạn có thể xác định vị trí tốt nhất cho quầy thanh toán, kệ trưng bày, khu vực dịch vụ và kho hàng. Điều này giúp tận dụng tối đa diện tích sử dụng, đồng thời tạo ra luồng di chuyển thuận tiện cho khách hàng.
Một bản vẽ tốt sẽ giúp bạn tránh được những sai lầm trong việc bố trí không gian, như tạo ra các “điểm nghẽn” hay khu vực “chết” trong cửa hàng. Từ đó, bạn có thể tạo ra trải nghiệm mua sắm thoải mái và hiệu quả cho khách hàng.
Tiết kiệm chi phí và thời gian trong quá trình thi công cửa hàng
Việc có sẵn một bản vẽ thiết kế cửa hàng chi tiết sẽ giúp bạn tiết kiệm đáng kể chi phí và thời gian trong quá trình thi công. Bản vẽ cung cấp một bức tranh toàn cảnh về cửa hàng, giúp bạn dễ dàng lập kế hoạch và dự toán chi phí chính xác hơn, tránh những rủi ro không cần thiết.
Bản vẽ cũng giúp bên xây dựng hiểu rõ yêu cầu của bạn, từ đó thực hiện công việc một cách chính xác và hiệu quả hơn. Ngoài ra, bản vẽ chi tiết còn giúp bạn dễ dàng so sánh và lựa chọn giữa các phương án thiết kế khác nhau, đảm bảo bạn đưa ra quyết định đúng đắn ngay từ đầu.
Đảm bảo tuân thủ các quy định và tiêu chuẩn
Một lý do quan trọng khác để có bản vẽ thiết kế cửa hàng tiện lợi là đảm bảo tuân thủ các quy định và tiêu chuẩn về xây dựng, an toàn cháy nổ, và vệ sinh an toàn thực phẩm. Điều này không chỉ bảo vệ lợi ích của bạn mà còn đảm bảo an toàn cho khách hàng khi tham quan và mua sắm tại cửa hàng.
Các xu hướng thiết kế cửa hàng “hot” hiện nay
Trong bối cảnh thị trường ngày càng cạnh tranh, việc nắm bắt các xu hướng thiết kế cửa hàng tiện lợi mới nhất đóng vai trò rất quan trọng. Những xu hướng này không chỉ giúp tăng tính hấp dẫn của cửa hàng mà còn nâng cao trải nghiệm mua sắm của khách hàng.
Thiết kế không gian mở cho cửa hàng
Không gian mở đã trở thành một lựa chọn phổ biến trong bản vẽ thiết kế cửa hàng tiện lợi hiện đại. Phong cách này tạo ra cảm giác thông thoáng và thoải mái cho khách hàng. Thay vì sử dụng vách ngăn hay tường chắn, thiết kế không gian mở khuyến khích sự giao lưu giữa các khu vực khác nhau trong cửa hàng, từ đó thúc đẩy xu hướng mua sắm tự nhiên.

Đặc biệt không gian mở giúp khách hàng sẽ dễ dàng tiếp cận các sản phẩm hơn, đồng thời tạo điều kiện cho nhân viên tư vấn và phục vụ khách hàng một cách nhanh chóng và hiệu quả. Không gian này cũng tạo cơ hội để đưa vào những yếu tố tự nhiên, như ánh sáng tự nhiên và cây xanh, góp phần làm tăng sức hấp dẫn của cửa hàng.
Thiết kế cửa hàng tiện lợi xanh
Trong bối cảnh lo ngại về ô nhiễm môi trường gia tăng, thiết kế cửa hàng tiện lợi xanh không chỉ đáp ứng nhu cầu thị trường mà còn thể hiện trách nhiệm xã hội của doanh nghiệp. Việc sử dụng vật liệu thi công thân thiện với môi trường, và thiết lập hệ thống tiết kiệm năng lượng là những điểm nổi bật trong các bản vẽ thiết kế hiện nay.
Màu sắc chủ đạo và hình ảnh của cửa hàng cũng nên phản ánh tinh thần xanh, chẳng hạn như việc sử dụng màu xanh lá, màu nâu đất và các hình ảnh liên quan đến thiên nhiên. Từ đó xây dựng một cửa hàng thân thiện với môi trường, thu hút thêm nhóm khách hàng có ý thức bảo vệ môi trường.
Thiết kế với tone màu sắc chủ đạo nổi bật
Sử dụng tone màu sắc chủ đạo nổi bật trong bản vẽ thiết kế cửa hàng là một chiến lược thông minh nhằm thu hút sự chú ý của khách hàng. Mỗi màu sắc đều mang lại một cảm xúc và ấn tượng riêng biệt, ví dụ như màu đỏ có thể gây kích thích và tăng cường cảm giác về sự khẩn cấp, trong khi màu xanh dương thì mang lại cảm giác bình yên.

Việc chọn và kết hợp màu sắc không chỉ cần chú ý đến yếu tố thẩm mỹ mà còn phải phù hợp với thương hiệu, cân bằng giữa các yếu tố trong cửa hàng cũng quan trọng. Chẳng hạn, nếu bạn sử dụng màu sắc rất nóng cho một khu vực trưng bày cụ thể, hãy chắc chắn rằng khu vực còn lại sẽ mang lại cảm giác hài hòa và không quá chói mắt.
Một số yếu tố cần chú ý trong bản vẽ thiết kế cửa hàng
Bản vẽ thiết kế cửa hàng tiện lợi không chỉ đơn thuần là phối cảnh hay sơ đồ. Để đạt được hiệu quả cao nhất, có một số yếu tố cần chú ý trong bản vẽ thiết kế mà bạn không nên bỏ qua.
- Tính khả thi và thực tiễn: nên đảm bảo rằng các ý tưởng sáng tạo của bạn có thể được thực hiện theo thực tế mà không vượt quá ngân sách hoặc thời gian đã định. Tiến hành khảo sát trước về không gian và các yếu tố xung quanh cũng là một bước quan trọng trong quá trình này.
- Tính linh hoạt trong bố trí: điều này có nghĩa là cấu trúc và các khu vực trong cửa hàng cần có khả năng điều chỉnh phù hợp với nhu cầu kinh doanh, giúp cửa hàng có thể thích ứng tốt hơn với thay đổi trong hành vi mua sắm của khách hàng.
- Sự đồng nhất trong thương hiệu: cần đảm bảo sự đồng nhất về thương hiệu. Tất cả các yếu tố từ màu sắc, vật liệu, kiểu dáng cho đến bố trí không gian đều cần phản ánh đúng bản chất và triết lý của thương hiệu.
- Xác định đối tượng khách hàng: Nắm rõ đặc điểm và nhu cầu của khách hàng mục tiêu để điều chỉnh thiết kế cho phù hợp.
- Công nghệ tích hợp: Xem xét việc tích hợp công nghệ mới để nâng cao trải nghiệm khách hàng và tối ưu hóa quy trình vận hành.
Hy vọng những mẫu bản vẽ thiết kế cửa hàng tiện lợi và các thông tin như lợi ích, tiêu chuẩn của bản vẽ sẽ giúp ích cho bạn trong việc xây dựng một cửa hàng của chính mình. Nếu bạn còn thắc mắc khi xây dựng hay mong muốn tìm công ty cải tạo nhà uy tín thì đừng ngần ngại hãy liên hệ JAMA HOME để được tư vấn chi tiết hơn nhé!
