Bản vẽ thiết kế shop thời trang là yếu tố then chốt giúp định hình không gian, tạo ấn tượng và thu hút khách hàng. Trong thời đại hiện nay, việc sở hữu một shop thời trang không chỉ đòi hỏi các sản phẩm quần áo đẹp mắt mà còn cần có không gian mua sắm ấn tượng.
Trong bài viết này, JAMA HOME sẽ cung cấp cho bạn những mẫu bản vẽ thiết kế độc đáo và các yếu tố quan trọng trong quá trình lên bản vẽ.
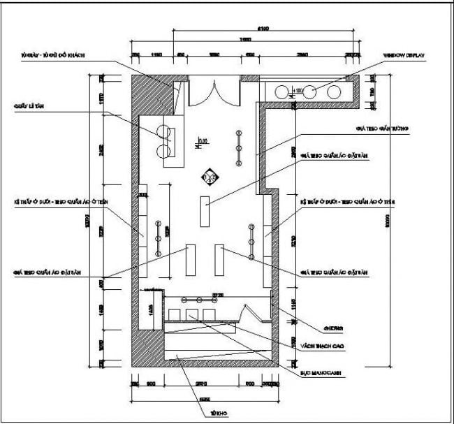
Top 10 mẫu bản vẽ thiết kế shop thời trang độc đáo, khoa học
Trong lĩnh vực thời trang hiện nay, việc sở hữu một cửa hàng không chỉ đơn thuần là bày bán sản phẩm mà còn là tạo dựng một không gian mang tính trải nghiệm cao. Để giúp bạn hình dung rõ hơn về các phong cách thiết kế, JAMA HOME xin giới thiệu đến bạn top 10 mẫu bản vẽ thiết kế shop thời trang độc đáo, khoa học, được yêu thích nhất hiện nay:










Những mẫu bản vẽ thiết kế shop thời trang này không chỉ đẹp mắt mà còn mang lại hiệu quả tối ưu trong việc thu hút khách hàng và nâng cao trải nghiệm mua sắm. Hãy cùng khám phá những ý tưởng sáng tạo, từ cách bố trí không gian, màu sắc cho đến các chi tiết trang trí, giúp cửa hàng của bạn trở nên nổi bật và ấn tượng trong mắt khách hàng.
Phong cách thiết kế shop thời trang xu hướng nhất hiện nay
Việc lựa chọn phong cách thiết kế shop thời trang phụ thuộc vào thương hiệu và tệp khách hàng mà bạn muốn hướng đến. Dưới đây là những phong cách thiết kế shop quần áo nổi bật và được ưa chuộng nhất hiện nay giúp bạn dễ dàng lựa chọn cho bản vẽ thiết kế shop thời trang của riêng mình:
Phong cách thiết kế shop thời trang hiện đại
Bản vẽ thiết kế shop thời trang theo phong cách hiện đại luôn là lựa chọn hàng đầu của nhiều chủ cửa hàng. Phong cách này đặc trưng bởi sự tinh gọn và tiện nghi, với các đường nét đơn giản, sạch sẽ. Màu sắc chủ đạo thường là gam màu trung tính như trắng, xám, đen, kết hợp với các vật liệu như kính và kim loại. Thiết kế hiện đại không chỉ giúp shop quần áo trở nên rộng rãi, gọn gàng và sáng sủa hơn mà còn mang lại cảm giác thoải mái cho khách hàng khi mua sắm.

Phong cách thiết kế shop thời trang theo xu hướng tối giản
Phong cách tối giản (minimalism) là một xu hướng không thể bỏ qua khi nhắc đến thiết kế shop thời trang. Với phương châm “less is more,” không gian trong shop được sắp xếp tối giản với số lượng đồ trang trí và nội thất hạn chế.
Điều này giúp làm nổi bật các sản phẩm thời trang, đồng thời mang lại sự tinh tế và sang trọng cho cửa hàng. Bản vẽ thiết kế shop thời trang với phong cách này thường ưa chuộng các gam màu trắng, xám và đen, giúp tạo nên một không gian thanh lịch.

Phong cách thiết kế shop thời trang Vintage
Phong cách vintage luôn cuốn hút các tín đồ thời trang yêu thích vẻ đẹp hoài cổ. Bản vẽ thiết kế shop thời trang theo phong cách vintage thường nổi bật với các chi tiết trang trí từ những thập kỷ trước, sử dụng đồ nội thất cổ và màu sắc ấm áp như nâu, đỏ, vàng nhạt.
Các chất liệu gỗ, da cũng góp phần tạo nên sự độc đáo cho không gian. Một shop thời trang vintage mang đến cảm giác gần gũi, thân thiện và thu hút, đặc biệt hấp dẫn đối với khách hàng trẻ tuổi yêu thích sự khác biệt.

Phong cách thiết kế shop thời trang Luxury
Phong cách Luxury mang đến sự sang trọng và đẳng cấp, phù hợp với các thương hiệu thời trang cao cấp. Các shop được thiết kế theo phong cách này thường sử dụng các chất liệu xa hoa như đá cẩm thạch, da thuộc, gỗ tự nhiên, kim loại vàng hay bạc.
Màu sắc chủ đạo là những gam màu quý phái như đen, vàng, trắng hoặc các màu ánh kim. Nội thất và bố cục thường được sắp xếp theo một trật tự tinh tế, thể hiện rõ đẳng cấp thương hiệu.

Phong cách thiết kế shop thời trang Country Style
Bản vẽ thiết kế shop thời trang Country style lấy cảm hứng từ không gian nông thôn, thiên nhiên mộc mạc, bình dị. Phong cách này sử dụng các vật liệu tự nhiên như gỗ, đá, và các chi tiết trang trí đơn giản nhưng đầy tính nghệ thuật.
Màu sắc chủ đạo thường là các tông màu đất như nâu, be, xanh lá, mang lại cảm giác yên bình và dễ chịu. Đây là lựa chọn lý tưởng cho các shop thời trang theo đuổi phong cách thô mộc và gần gũi với thiên nhiên.

Phong cách thiết kế cửa hàng thời trang đương đại
Phong cách đương đại là sự kết hợp hoàn hảo giữa các yếu tố hiện đại và nghệ thuật, mang đến không gian trẻ trung và đầy sáng tạo. Thiết kế này chú trọng đến sự linh hoạt trong việc sắp xếp không gian và cách sử dụng màu sắc tươi mới.
Nội thất thường là những thiết kế độc đáo, giúp tạo điểm nhấn và thu hút sự chú ý của khách hàng. Đây là phong cách thiết kế thích hợp cho những shop thời trang năng động, muốn tạo ấn tượng mạnh với giới trẻ.

Phong cách thiết kế shop thời trang Wabi Sabi
Wabi Sabi là phong cách thiết kế đến từ Nhật Bản, tôn vinh sự đẹp đẽ trong sự không hoàn hảo. Không gian shop theo phong cách Wabi Sabi mang lại cảm giác yên tĩnh và trầm mặc nhờ vào sự kết hợp của các chất liệu thô mộc như gỗ, gốm và đá. Thiết kế này tạo nên một không gian mua sắm gần gũi, thư giãn, đặc biệt phù hợp với những shop thời trang theo phong cách tự nhiên và giản dị.

>>> Đọc thêm: Tìm hiểu về phong cách Wabi Sabi trong thiết kế nội thất- vẻ đẹp từ sự không hoàn hảo
Tại sao cần phải có bản vẽ thiết kế shop thời trang?
Việc có một bản vẽ thiết kế shop thời trang là vô cùng quan trọng đối với quá trình xây dựng và phát triển thương hiệu. Dưới đây là những lý do chính:
- Tối ưu không gian: Một bản vẽ thiết kế giúp tối ưu hóa diện tích, đảm bảo mọi khu vực trong shop được sử dụng hiệu quả.
- Tạo ấn tượng đầu tiên: Thiết kế shop đẹp sẽ tạo ấn tượng mạnh với khách hàng ngay từ cái nhìn đầu tiên, khuyến khích họ quay lại.
- Nâng cao trải nghiệm mua sắm: Bố trí hợp lý giúp khách hàng dễ dàng tìm kiếm sản phẩm, từ đó tăng doanh số bán hàng.
- Thể hiện phong cách thương hiệu: Một bản thiết kế chuẩn sẽ giúp thể hiện rõ phong cách và giá trị cốt lõi của thương hiệu.
Các yếu tố quan trọng trong bản vẽ thiết kế shop thời trang
Thiết kế một shop thời trang không chỉ đơn thuần là sắp xếp nội thất hay lựa chọn màu sắc mà cần một kế hoạch chi tiết, khoa học, thể hiện rõ ràng trong bản vẽ thiết kế. Dưới đây là những yếu tố quan trọng cần lưu ý khi lên bản vẽ thiết kế shop thời trang.
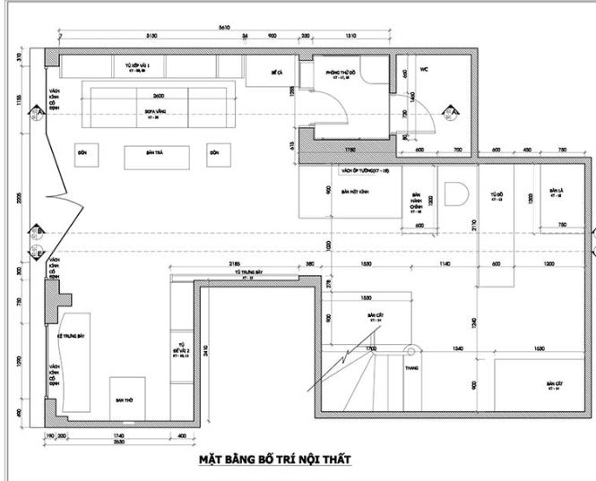
Bố trí không gian
Bố trí không gian là yếu tố quan trọng nhất trong bất kỳ thiết kế nào. Một shop thời trang cần có sự phân chia hợp lý các khu vực như:
- Khu vực trưng bày sản phẩm
- Phòng thử đồ
- Quầy thu ngân
- Khu vực tiếp khách hoặc ghế chờ
Việc sắp xếp không gian phải dựa trên diện tích mặt bằng và nhu cầu của khách hàng. Mục tiêu là tạo ra một không gian thuận tiện, dễ di chuyển, không gây cản trở cho khách hàng khi mua sắm. Một bản vẽ shop thời trang tốt cần tối ưu hóa không gian, không để lãng phí diện tích và giữ được tính thẩm mỹ cho toàn bộ cửa hàng.
Ánh sáng
Ánh sáng đóng vai trò cực kỳ quan trọng trong việc nâng cao trải nghiệm mua sắm của khách hàng và tạo sự nổi bật cho sản phẩm. Ánh sáng cần được thiết kế để:
- Tôn lên vẻ đẹp của quần áo: Sử dụng ánh sáng phù hợp để làm nổi bật màu sắc, chất liệu và kiểu dáng của trang phục.
- Tạo không gian ấm cúng hoặc sang trọng: Tuỳ theo phong cách thiết kế mà lựa chọn ánh sáng ấm hoặc ánh sáng trắng để phù hợp với cảm giác mà shop muốn mang lại.
- Tối ưu ánh sáng tự nhiên: Nếu có cửa sổ lớn, nên tận dụng ánh sáng tự nhiên vào ban ngày để tạo cảm giác thoải mái, thân thiện và tiết kiệm điện năng.
Ánh sáng cần được bố trí hợp lý ở các khu vực quan trọng như quầy thu ngân, phòng thử đồ và các kệ trưng bày sản phẩm.
Màu sắc
Màu sắc trong thiết kế shop thời trang cần phản ánh đúng phong cách và cá tính của thương hiệu. Mỗi màu sắc mang lại một cảm giác khác nhau, do đó việc lựa chọn và phối hợp màu sắc phải phù hợp với đối tượng khách hàng mà shop hướng tới:
- Màu trung tính (trắng, xám, be) thường được dùng trong các shop thời trang hiện đại, tối giản vì tạo cảm giác thanh lịch và sang trọng.
- Màu sáng như vàng, xanh, đỏ có thể dùng làm điểm nhấn để tạo cảm giác tươi mới, thu hút.
- Màu sắc tự nhiên (gỗ, xanh lá) được sử dụng trong các shop có phong cách Rustic hoặc Country Style.
Bản vẽ thiết kế shop thời trang cần chú trọng việc phối hợp màu sắc hài hòa để tạo không gian dễ chịu, thu hút khách hàng, đồng thời làm nổi bật sản phẩm trưng bày.
Sắp xếp kệ trưng bày
Kệ trưng bày là trung tâm thu hút sự chú ý của khách hàng, do đó, cách bố trí kệ cần được tính toán kỹ lưỡng trong bản vẽ thiết kế:
- Kệ ngang hoặc kệ trưng bày dạng đứng: Giúp tiết kiệm không gian và tạo sự gọn gàng.
- Sắp xếp sản phẩm theo nhóm: Phân loại sản phẩm theo từng nhóm như quần áo theo mùa, theo bộ sưu tập, hay theo chất liệu để khách hàng dễ tìm kiếm.
- Điểm nhấn cho sản phẩm đặc biệt: Sử dụng các kệ hoặc móc treo nổi bật để thu hút sự chú ý đến những sản phẩm chính hoặc hot trend.
Việc sắp xếp sản phẩm khoa học sẽ giúp khách hàng dễ dàng tìm kiếm món đồ mình muốn, từ đó tăng khả năng mua hàng.
Phòng thử đồ
Phòng thử đồ là khu vực không thể thiếu trong một shop thời trang. Bản vẽ thiết kế shop thời trang cần thể hiện rõ:
- Số lượng phòng thử phù hợp với diện tích shop: Đảm bảo không gian thử đồ thoải mái, không chật chội.
- Vị trí phòng thử hợp lý: Thường đặt ở vị trí dễ tiếp cận nhưng không quá nổi bật, tránh gây phiền phức cho các khách hàng khác.
- Ánh sáng và gương trong phòng thử: Sử dụng ánh sáng mềm mại, tôn lên vóc dáng khách hàng và lắp đặt gương lớn, rõ ràng.
Phòng thử đồ thoải mái và tiện lợi sẽ tạo cảm giác dễ chịu, giúp khách hàng ra quyết định mua sắm nhanh chóng hơn.
Sự linh hoạt trong thiết kế
Thiết kế shop thời trang cần có sự linh hoạt để có thể dễ dàng thay đổi bố cục khi cần thiết. Những cửa hàng thời trang thường xuyên phải cập nhật sản phẩm mới, thay đổi các bộ sưu tập theo mùa. Do đó, các kệ trưng bày và bố trí sản phẩm cần dễ dàng di chuyển hoặc điều chỉnh mà không làm ảnh hưởng đến không gian chung.
Nhìn chung, việc tạo ra một bản vẽ thiết kế shop thời trang hợp lý và thu hút không chỉ đơn giản là vấn đề thẩm mỹ mà còn ảnh hưởng đến trải nghiệm khách hàng. Nếu bạn đang cần tìm đơn vị chuyên cải tạo nhà trọn gói, tư vấn thiết kế xây dựng uy tín thì hãy liên hệ JAMA HOME ngay nhé!
