Ở Việt Nam hiện nay, căn hộ 2 phòng ngủ là một trong những loại hình nhà ở phổ biến, với diện tích từ 60-80m2, phù hợp với đại đa số gia đình 2 thế hệ đang sinh sống. Cũng nhờ đó mà loại hình thiết kế nội thất căn hộ 2 phòng ngủ ngày càng được ưa chuộng. Vậy làm sao để có thiết kế phù hợp cho căn hộ đang là vấn đề được nhiều người quan tâm. Sau đây, JamaDecor xin giới thiệu đến bạn những mẫu thiết kế nội thất căn hộ 2 phòng ngủ đẹp năm 2021, đặc biệt phù hợp với những cặp vợ chồng trẻ.
1. Mẫu thiết kế nội thất căn hộ 2 phòng ngủ đẹp và hiện đại
Mẫu 1: NỘI THẤT CĂN HỘ RESGREEN – ANH HÀ
Thông tin dự án
- Căn hộ: Chung Cư Resgreen
- Chủ đầu tư: Anh Hà
- Hạng mục: Trọn gói nội thất căn hộ 2 phòng ngủ
- Vật liệu: Sử dụng 100% gỗ MDF An Cường chống trầy
Với sự giao thoa giữa nhiều mảng màu nhưng lại cân đối được tính thẩm mỹ chung, thiết kế nội thất căn hộ 2 phòng ngủ Resgreen thể hiện rõ nét được phần nào phong cách riêng của gia chủ.

Phòng khách sử dụng gam màu cam đất cho bộ sofa. Không gian sinh hoạt được trang trí chủ yếu bởi gam màu trầm mang lại cảm giác ấm cúng cho gia đình khi quây quần bên nhau

Phòng bếp sử dụng chủ yếu là gam màu trắng, vừa mang lại sự tinh tế cũng như giúp dễ dàng trong việc dọn dẹp.

Phòng ngủ sử dụng gam màu nhẹ nhàng, trung tính, tạo sự thoải mái khi nghỉ ngơi

Phòng ngủ của con sử dụng những nội thất với mày sắc tươi sáng, sử dụng giường tầng để thiết kiệm không gian
Mẫu 2: CĂN HỘ RICHMOND NGUYỄN XÍ – CHỊ TRANG
Thông tin dự án:
- Khách hàng: Chị Trang
- Dự án: Richmond Nguyễn Xí
- Hạng mục: Nội Thất Nguyên Căn
- Ngân sách dự kiến: 70.000.000đ
- Vật liệu: MDF Mộc Phát (Bảo hành chính hãng 02 năm)
Đây là một không gian đơn giản được bài trí gọn gàng tạo cảm giác thông thoáng. Sử dụng các layer màu trung tính, tinh gọn, hiện đại để mang lại nét gần gũi hơn cho các thành viên trong gia đình. Các khu vực chức năng được đặt liền mạch, tận dung các khoảng trống kiến trúc của căn hộ

Lát cắt mặt bằng của căn hộ

Phòng khách sử dụng các tone màu ghi xám tạo cảm giác gần gũi, trầm ấm

Các không gian trong căn nhà được nối kề nhau

Góc bếp nhỏ xinh sử dụng thiết kế chữ I kết hợp phụ kiện thông minh, giúp giảm đi sự hạn chế về diện tích

Set giường ngủ tiêu chuẩn, hệ tủ âm tường giúp tăng diện tích trống cho căn phòng thông thoáng hơn

Mẫu 3: CĂN HỘ GOLDCOAST NHA TRANG 2PN – CHỊ SƠN
Thông tin dự án:
- Căn hộ GoldCoast Nha Trang 2PN
- Chủ đầu tư: Chị Sơn
- Hạng mục: Full nội thất gỗ An Cường (Bếp – Phòng Khách – 2 PN – Phòng Làm Việc)

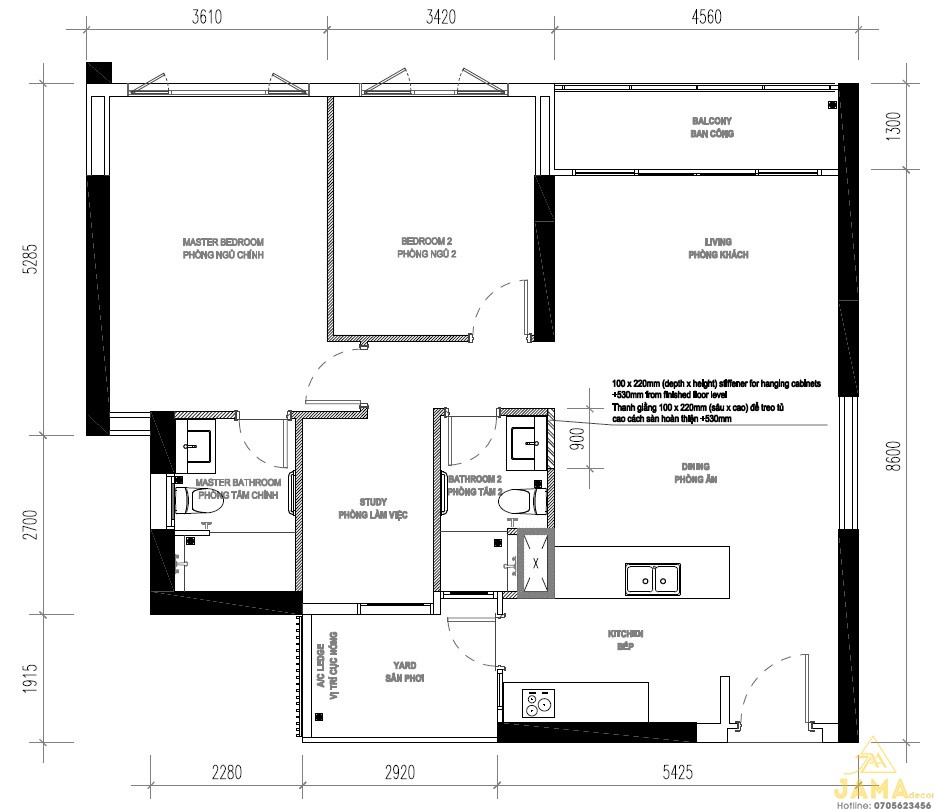
Phối cảnh mặt bằng của căn hộ
Thiết kế nội thất căn hộ 2 phòng ngủ này khá đơn giản. Sử dụng những tone màu xám trắng, kết hợp với nội thất tone màu nổi bật làm điểm nhấn cho các không gian của căn hộ.




Mẫu 4: CĂN HỘ VINHOMES GRAND PARK 2PN – CHỊ MƠ
Thông tin dự án:
- Chủ đầu tư: Chị Mơ
- Dự án căn hộ: Vinhomes Grand Park 2 PN
- Phong cách thiết kế: Hiện đại đơn giản
- Hạng mục thi công: Trọn gói nội thất căn hộ Vinhomes 2 PN
- Tổng chi phí: 100.200.000đ
Không gian nội thất căn bộ Vinhomes Grand Park 2PN được JAMA thiết kế với những đường nét đơn giản, vật liệu bóng gương đem đến sự sang trọng, tinh tế. Bố cục nội thất hợp lý không chỉ khiến căn phòng trở nên gần gũi, tiện nghi hơn mà còn đem lại cho chủ nhân căn hộ một cuộc sống chất lượng.

Thiết kế nội thất căn hộ 2 phòng ngủ với sự tích hợp đa năng các căn phòng của căn hộ





Mẫu 5: CĂN HỘ GATEWAY VŨNG TÀU 2PN – ANH TUẤN, CHỊ LINH
Thông tin dự án:
Chủ đầu tư: Anh Tuấn – Chị Linh
Diện tích: 73.9m2
Hạng mục thi công: Full nội thất căn hộ 2PN
Với diện tích 73.9m2 đi kèm cấu trúc nhà khá “vuông”, không gian căn hộ Gateway Vũng Tàu được JAMA thể hiện 3D với phong cách hiện đại mới. Không chỉ sang trọng, tao nhã. Với cấu trúc này, JAMA đã kết nối 3 không gian gồm phòng khách, bàn ăn và bếp lại làm một, từ đó tạo thành một không gian thống nhất và liền mạch với nhau.

Phối cảnh thiết kế nội thất căn hộ 2 phòng ngủ Gateway




Mẫu 6: DỰ ÁN THIẾT KẾ NỘI THẤT CĂN HỘ 2 PHÒNG NGỦ THE VIEW RIVIERA POINT QUẬN 7
Thông tin dự án:
- Tên dự án: The View Riviera Point
- Vị tr dự án: 584 Huỳnh Tấn Phát, P. Tân Phú, Q. 7, TP Hồ Chí Minh
- Chủ đầu tư: Công ty TNHH Keppel Land (Singapore) (75%) & Công ty TNHH Tấn Trường (25%) hợp tác góp vốn.
- Diện tích đất: gần 12.7 ha.
- Tổng mức đầu tư: 206 triệu USD.
- Tổng số căn hộ giai đoạn Tower 6,7,8 : 518 căn.
- Diện tích: 91m2 – 150m2 (2-3PN), 303 – 342m2 (Penthouse)
Mẫu thiết kế nội thất căn hộ 2 phòng ngủ The View Riviera Point Tower 8 được thiết kế với phong cách hiện đại. Đây là phong cách được khá nhiều khách hàng lựa chọn cho nhà chung cư. Vì thế Jama Decor đã mang phong cách hiện đại vào trong căn hộ này. Căn hộ bao gồm phòng khách bếp liên thông và 3 phòng ngủ rất phù hợp với gia đình trẻ.

Bản vẽ thiết kế nội thất căn hộ 2 phòng ngủ nằm ở quận 7




Mẫu 7: CĂN HỘ HAUSNEO 2 PHÒNG NGỦ – MRS CHERYL PHUONG
Thông tin dự án:
- Chủ đầu tư: Chị Phương
- Địa điểm công trình: Đường Liêm Phường, Phường Phú Hữu, Quận 9, TP.Hồ Chí Minh
- Diện tích thi công căn hộ: 65.7m2. Căn hộ được thiết kế với 1 phòng khách lớn, 2 phòng ngủ, 1 gian bếp và 2 toilet rộng rãi
- Hạng mục: Thiết kế và thi công nội thất nguyên căn hộ.
Thiết kế nội thất căn hộ 2 phòng ngủ dưới đây với bố cục sắp xếp gọn gàng, ngăn nắp đã giúp cho mỗi khu vực trong căn hộ được rộng rãi, thông thoáng. Các sắc màu hòa quyện tinh tế và gợi lên những đường nét mềm mại và mang tính thẩm mỹ cao. Bên cạnh đó, việc quan tâm sử dụng các tiện ích xanh đã tạo nên một không gian thanh khiết và gần gũi với thiên nhiên.






Mẫu 8: THIẾT KẾ NỘI THẤT CĂN HỘ CHUNG CƯ GATEWAY 73.9M2
Những căn hộ chung cư với diện tích nhỏ xinh 70m2 đang trở thành sự lựa chọn hàng đầu của nhiều gia đình trẻ. Bởi với diện tích này, người mua sẽ giảm được áp lực về tài chính, đồng thời vẫn có thể thiết kế nội thất cho căn hộ trở nên đẹp và đầy đủ tiện ích. Thiết kế nội thất căn hộ 2 phòng ngủ dưới đây sử dụng tone màu trắng – nâu nhạt làm chủ đạo điểm xuyến thêm màu xanh làm căn hộ trở nên tươi mát hơn.





Mẫu 9: THIẾT KẾ NỘI THẤT CĂN HỘ 71M2 CHUNG CƯ CAO CẤP OPAL GARDEN
Căn hộ với diện tích không quá lớn chỉ 2 phòng ngủ nên việc tận dụng tối đa diện tích căn hộ tạo không gian sống thoải mái cho gia đình gồm 4 thành viên là điều hết sức cần thiết. Thiết kế nội thất căn hộ 2 phòng ngủ với không gian chung với phòng khách – ăn liên thông nhau. Toàn bộ không gian sử dụng gam màu xám – trắng nhấn nâu vàng. Gam màu trung tính đơn giản này mang đến nét hiện đại và sang trọng cho không gian. Trên nền trung tính là điểm nhấn vàng đồng giúp căn hộ luôn ấm áp và đẹp tinh tế.

Mặt bằng thiết kế nội thất căn hộ 2 phòng ngủ 71m2 chung cư cao cấp Opal Garden




Phòng bếp phù hợp với thiết kế căn hộ 2 phòng ngủ

Mẫu 10: THIẾT KẾ NỘI THẤT CĂN HỘ 2 PHÒNG NGỦ BOTANICA PREMIER
Thông tin dự án:
- Thiết kế và thi công nội thất: Jama Decor.
- Địa điểm công trình: Botanica Premier.
- Diện tích thi công: Căn hộ 71m2 có 2 phòng ngủ.
- Hạng mục: Thiết kế nội thất căn hộ.
Sau những xô bồ, tấp nập của cuộc sống ai ai cũng muốn có 1 nơi nghỉ ngơi dừng chân riêng cho mình. Không gian hiện đại, sang trọng trong căn hộ Botanica Premier sau đây sẽ là nơi dừng chân lý tưởng cho bạn. Thiết kế nội thất căn hộ 2 phòng ngủ này đều được làm từ gỗ để tạo nên không gian ấm cúng, dễ chịu cho các thành viên mỗi khi về tới căn hộ.

Thiết kế nội thất căn hộ 2 phòng ngủ theo lối hiện đại



Mẫu 11: CĂN HỘ GOLDEN MANSION 71.2M2
Thông tin dự án:
- Chủ đầu tư: Chị Thảo
- Thiết kế và thi công nội thất: Jama Decor
- Địa điểm công trình: Golden Mansion,119 Phổ Quang, Phường 9, Quận Phú Nhuận, TP.HCM
- Diện tích thi công căn hộ: 71.2m2 có 2 phòng ngủ
- Hạng mục: Thiết kế và thi công nội thất nguyên căn hộ
Đến với căn hộ Golden Mansion 71.2m2 này bạn sẽ được thấy một không gian sống thời thượng với đầy đủ các tiện nghi hiện đại. Các vật dụng bằng gỗ cao cấp được thiết kế đơn giản nhưng không kém phần sang trọng. Các gam màu hiện đại được phối hợp rất tinh tế. Mỗi một khu vực là một không gian sống vô cùng hoàn hảo. Thiết kế nội thất căn hộ 2 phòng ngủ không những sang trọng, hiện đại mà còn được bố trí khoa học.






Mẫu 12: CĂN HỘ THE SUN AVENUE – XANH HƠN, NỔI BẬT HƠN
Thông tin dự án:
- Chủ đầu tư: Chị Trâm
- Thiết kế và thi công nội thất: Jama Decor
- Địa điểm công trình: 62 Đường Mai Chí Thọ, An Phú, Quận 2, TP.Hồ Chí Minh
- Căn hộ được thiết kế với 1 phòng khách lớn, 2 phòng ngủ, 1 gian bếp
- Hạng mục: Thiết kế và thi công nội thất nguyên căn hộ.
The Sun Avenue được mệnh danh là “Đại Lộ Mặt Trời” sở hữu view 3 mặt sông, hội tụ đầy đủ các yếu tố thiên nhiên, căn hộ luôn tràn ngập ánh sáng, thoáng mát và nguồn gió tự nhiên mang theo một chút hơi nước từ các con sông làm cho cuộc sống bừng sáng, hài hòa. Thiết kế nội thất căn hộ 2 phòng ngủ này sử dụng màu xanh lá làm màu sắc chủ đề cho toàn bộ căn hộ để tạo không khí tươi mát cho căn nhà.

Mặt bằng thiết kế nội thất căn hộ 2 phòng ngủ The Sun Avenue





Mẫu 13: CĂN HỘ GREEN FIELD , BÌNH THẠNH
Thông tin dự án:
- Chủ đầu tư: Chị Tâm
- Thiết kế và thi công nội thất: Jama Decor
- Địa điểm công trình: Chung cư Green Field – 686, Xô Viết Nghệ Tĩnh, Phường 25, Q.Bình Thạnh, HCM
- Hạng mục thi công: PK + 2PN + 2Toilet
Các gam màu hiện đại được phối hợp rất tinh tế. Mỗi một khu vực là một không gian sống vô cùng hoàn hảo. Nội thất sang trọng, hiện đại được bố trí khoa học làm cho căn hộ Gree Field trở thành một tổ ấm tuyệt vời dành cho gia chủ và các thành viên trong gia đình. Thiết kế nội thất căn hộ 2 phòng ngủ với không gian phòng bếp và phòng khách nối liền nhau đã tạo ra một không gian mở giúp không gian thông thoáng hơn, đồng thời cũng giúp gia chủ thuận lợi hơn trong việc di chuyển qua lại giữa hai khu vực này.



Mẫu 14: CĂN HỘ GOLD COAST NHA TRANG 2 PHÒNG NGỦ
Thông tin dự án:
- Chủ đầu tư: Mr. Hân
- Gói full nội thất: Phòng khách, 2 phòng ngủ, phòng bếp, 2 toilet.
- Phong cách: Hiện đại – Sang trọng
- Địa điểm công trình: Căn hộ Gold Coast Nha Trang N14 – 04
Căn hộ Gold Coast Nha Trang là một không gian sống lý tưởng mang lại cho khách hàng một không gian sống lý tưởng khi được xây dựng ở gần biển. Thiết kế nội thất 2 phòng ngủ tối giản nhưng vẫn mang được sự hiện đại trong mọi ngóc ngách. Phong cách thiết kế hiện đại tập trung chủ yếu vào tính công năng, giảm thiểu những trang trí rườm rà quá mức nhưng vẫn đảm bảo tính thẩm mỹ cho căn nhà.

Mặt bằng thiết kế nội thất căn hộ 2 phòng ngủ Gold Coast


Thiết kế nội thất phòng khách cho căn hộ 2 phòng ngủ



Mẫu 15: KẾ NỘI THẤT CĂN HỘ 2 PHÒNG NGỦ S-HOME BÌNH CHIỂU
Thông tin dự án:
- Chủ đầu tư: Chị Tuyền
- Diện tích căn hộ: 67m2
- Vị trí công trình: tại lô I thuộc khu dân cư Bình Chiểu, quận Thủ Đức
- Hạng mục: Thiết kế và thi công nội thất nguyên căn hộ
- Thiết kế và thi công: Nội thất Jama
Thiết kế nội thất căn hộ 2 phòng ngủ với một không gian sống thời thượng với đầy đủ các tiện nghi hiện đại. Các vật dụng bằng gỗ cao cấp được thiết kế vô cùng nổi bật đã làm cho không gian nội thất căn hộ Sunrise Riverside thêm phần quyến rũ và lộng lẫy.

Phòng ăn phù hợp với thiết kế nội thất căn hộ 2 phòng ngủ



2. Đơn vị thi công uy tín
JAMA là chuyên tư vấn thiết kế nội thất căn hộ 2 phòng ngủ. Chúng tôi cung cấp giải pháp thiết kế tối ưu không gian, sản xuất, thi công và cung cấp các sản phẩm gỗ may đo theo yêu cầu. Xuất phát điểm từ một đơn vị Tư vấn thiết kế, nay đã sở hữu xưởng sản xuất riêng. Việc chuyển đổi cơ cấu này nhằm mục đích kiểm soát tối đa chất lượng sản phẩm nội thất để phục vụ tốt nhất cho quý khách.
Đội ngũ thiết kế luôn cập nhật các xu hướng nội thất, giúp bạn hoàn thiện ý tưởng thiết kế nội thất căn hộ 2 phòng ngủ với không gian sống hoàn hảo của riêng mình. JAMA cung cấp đầy đủ dịch vụ trọn gói từ Xây dựng – Cải tạo – Nội thất. Cung cấp giải pháp tối ưu không gian, tiết kiệm diện tích. Các sản phẩm được phối hợp ngay từ khâu khảo sát, thiết kế để hiện thực hóa 100% bản thiết kế 3D. Bàn giao chìa khóa trao tay cho khách hàng.
Chính sách bảo hành sản phẩm gỗ lên đến 05 năm đi kèm chế độ kiểm tra, bảo trì trọn đời để khách hàng an tâm sử dụng sản phẩm nội thất tốt nhất. Đội ngũ nhân sự chuyên nghiệp gồm kiến trúc sư, thiết kế, giám sát, sản xuất… hỗ trợ giải đáp mọi thắc mắc kỹ thuật trong suốt quá trình làm nhà.
QUYỀN LỢI KHÁCH HÀNG ĐẾN VỚI JAMA
- JAMA bảo hành & bảo trì sản phẩm 05 NĂM
- JAMA thiết kế nội thất 3D – phối cảnh MIỄN PHÍ.
- Giá cả cạnh tranh đi cùng với chất lượng sản phẩm, dịch vụ tốt nhất.
JAMADECOR cam kết về chất lượng cũng như dịch vụ đối với khách hàng tin dùng và lựa chọn dịch vụ của công ty. Liên hệ ngay hotline: 07 056 23456 hoặc fanpage: Nội thất JAMA để được tư vấn những giải pháp tốt nhất cho không gian sống của bạn.
