Bạn đang tìm kiếm ý tưởng cho ngôi nhà 2 tầng của mình? Cùng JAMA HOME tham khảo hơn 50 mẫu bản vẽ thiết kế nhà 2 tầng độc đáo trong bài viết này! Từ phong cách hiện đại đến cổ điển, mỗi mẫu đều mang đến sự độc đáo và tiện nghi, giúp bạn dễ dàng chọn lựa cho ngôi nhà mơ ước của mình.
Bản vẽ thiết kế nhà 2 tầng hiện đại
Mẫu bản vẽ thiết kế nhà 2 tầng hiện đại không chỉ là một công trình kiến trúc, mà còn là biểu tượng cho sự đổi mới và tiện nghi trong cuộc sống hiện đại. Với phong cách thiết kế này, mỗi ngôi nhà đều được tạo hình một cách tinh tế, mang lại cảm giác mới mẻ và thu hút ngay từ cái nhìn đầu tiên. Thiết kế hiện đại thường tập trung vào những đường nét đơn giản và thanh thoát, giúp tối ưu hóa không gian sử dụng, đồng thời tạo ra sự thoải mái và thuận tiện cho gia đình bạn.

Bản vẽ thiết kế nhà 2 tầng kiểu chữ L
Bản vẽ thiết kế nhà 2 tầng kiểu chữ L không chỉ tạo được không gian sống rộng rãi, thông thoáng mà còn dễ dàng bố trí sân vườn nhỏ bên cạnh nhà. Đây là kiểu thiết kế thích hợp cho những gia đình muốn tận hưởng không gian xanh ngay tại nhà.

Với hình dáng chữ L đặc trưng, ngôi nhà tạo ra nhiều góc cạnh, giúp phân chia không gian một cách hợp lý và tiện lợi. Sự bố trí thông minh này cho phép ánh sáng tự nhiên tràn vào các phòng, từ đó tạo cảm giác thoáng đãng và ấm cúng. Khu vực sống chung như phòng khách và phòng bếp có thể được thiết kế liền mạch, tối ưu hóa việc giao tiếp giữa các thành viên trong gia đình.
Bản vẽ thiết kế nhà 2 tầng mái Thái
Kiểu mái này mang lại vẻ đẹp thanh thoát và sang trọng, khiến ngôi nhà trở nên nổi bật và thu hút ánh nhìn. Không chỉ vậy, mái Thái còn thể hiện sự tinh tế trong thiết kế kiến trúc, góp phần tạo nên sự hài hòa cho tổng thể ngôi nhà.

Mẫu nhà 2 tầng mái Thái rất linh hoạt, phù hợp với cả khu vực thành phố sôi động lẫn những vùng nông thôn yên bình. Ở thành phố, mái Thái có thể kết hợp với những phong cách hiện đại, trong khi ở nông thôn, nó thường hòa quyện với những yếu tố truyền thống, tạo ra không gian sống gần gũi và ấm cúng.
Bản vẽ thiết kế nhà 2 tầng với ban công rộng
Ban công rộng là điểm nhấn tạo nên không gian thư giãn lý tưởng cho gia chủ. Thiết kế này phù hợp với những ngôi nhà có diện tích đất rộng, giúp tối đa hóa không gian sinh hoạt ngoài trời.

Bản vẽ thiết kế nhà 2 tầng với ban công rộng không chỉ là một chi tiết kiến trúc nổi bật mà còn tạo nên một không gian thư giãn lý tưởng cho gia chủ và các thành viên trong gia đình. Ban công rộng mang lại nhiều tiện ích, cho phép gia đình có thể tận hưởng không khí trong lành và ngắm nhìn cảnh quan xung quanh ngay tại chính ngôi nhà của mình.
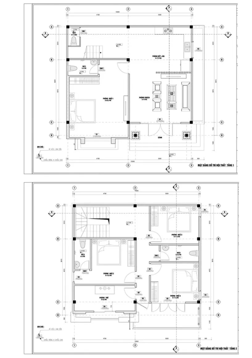
Bản vẽ nhà 2 tầng với gác lửng
Bản vẽ thiết kế nhà 2 tầng kết hợp với gác lửng là một giải pháp thông minh và sáng tạo, giúp tối ưu hóa không gian sống một cách hiệu quả. Thiết kế này không chỉ tiết kiệm diện tích mà còn mang lại nhiều tiện ích cho gia đình, cho phép thêm nhiều phòng chức năng mà không cần phải mở rộng thêm diện tích xây dựng.

Gác lửng mở ra một thế giới mới cho không gian sống, tạo điều kiện để gia đình có thể tận dụng một cách linh hoạt. Nó có thể được sử dụng làm phòng thờ trang nghiêm, nơi gia chủ thực hiện các nghi lễ truyền thống. Ngoài ra, gác lửng cũng có thể là không gian lý tưởng cho phòng ngủ phụ, nơi các thành viên trong gia đình có thể nghỉ ngơi một cách riêng tư và thoải mái.
>>> Tìm hiểu ngay: Cải tạo nhà ống 2 tầng cũ tiết kiệm chi phí
Bản vẽ thiết kế nhà 2 tầng phong cách cổ điển
Nhà 2 tầng cổ điển với các chi tiết trang trí hoa văn tinh tế và hệ mái vòm ấn tượng mang lại vẻ đẹp sang trọng, quý phái cho ngôi nhà. Phong cách này phù hợp với những gia chủ yêu thích sự lãng mạn và cổ điển.

Những chi tiết như lan can bằng sắt nghệ thuật, cột trụ vững chãi, và các hoa văn chạm trổ cầu kỳ thường xuất hiện trong các thiết kế này, tạo nên sự hòa quyện hoàn hảo giữa nghệ thuật và chức năng. Mỗi mẫu thiết kế đều toát lên vẻ quý phái, vừa cổ điển nhưng vẫn có sức hấp dẫn hiện đại, thu hút ánh nhìn từ mọi góc độ.
Bản vẽ thiết kế nhà 2 tầng tân cổ điển
Bản vẽ thiết kế nhà 2 tầng theo phong cách tân cổ điển là một sự hòa quyện tinh tế giữa nét đẹp hiện đại và những giá trị cổ điển vượt thời gian. Phong cách này không chỉ thể hiện sự sang trọng mà còn mang lại cảm giác gần gũi, ấm cúng cho không gian sống. Với những đường nét được tinh giản và làm mới từ các yếu tố cổ điển, ngôi nhà trở nên nổi bật với vẻ đẹp thanh thoát và đẳng cấp.

Thiết kế tân cổ điển thường tập trung vào sự cân đối và hài hòa giữa các chi tiết trang trí. Những họa tiết chạm trổ tinh tế, cột trụ mạnh mẽ và các hoa văn được sử dụng một cách khéo léo tạo nên những điểm nhấn nổi bật cho ngôi nhà.
Bản vẽ thiết kế nhà 2 tầng với sân thượng
Bản vẽ thiết kế nhà 2 tầng với sân thượng không chỉ đơn thuần là một phần mở rộng của ngôi nhà mà còn là một không gian sống độc đáo, nơi gia chủ có thể tận hưởng những khoảnh khắc thư giãn và giao lưu cùng bạn bè và gia đình. Sân thượng là một trong những không gian lý tưởng để cảm nhận không khí trong lành, tránh xa sự ồn ào của phố phường, đồng thời cũng là nơi lý tưởng để hòa mình vào thiên nhiên.

Thiết kế sân thượng được tối ưu hóa để tận dụng tối đa công năng sử dụng. Từ việc bố trí các chậu cây cảnh, hoa lá tạo nên một khu vườn nhỏ xinh xắn, cho đến việc sắp đặt bàn ghế ngoài trời, khu vực này có thể dễ dàng trở thành một nơi lý tưởng để tổ chức các bữa tiệc nhỏ, các buổi họp mặt thân mật hay đơn giản chỉ là một nơi để thư giãn sau một ngày dài làm việc.
Bản vẽ thiết kế nhà 2 tầng phong cách Nhật Bản
Nhà 2 tầng theo phong cách Nhật Bản là một biểu tượng của sự tối giản và hài hòa với thiên nhiên, thể hiện tinh thần Zen trong thiết kế kiến trúc. Phong cách này không chỉ đơn thuần là một xu hướng thiết kế, mà còn là một cách sống, nơi mà sự đơn giản và sự an lạc được đặt lên hàng đầu. Mỗi chi tiết trong ngôi nhà đều được lựa chọn cẩn thận, từ các vật liệu cho đến cách bài trí, nhằm tạo ra một không gian sống yên bình và thanh tịnh.

Các chất liệu tự nhiên như gỗ là yếu tố chủ đạo trong thiết kế nhà Nhật Bản, không chỉ mang lại vẻ đẹp gần gũi, mà còn tạo cảm giác ấm áp cho không gian sống. Gỗ được sử dụng rộng rãi trong các cấu trúc như sàn, trần và nội thất, giúp ngôi nhà hòa quyện hoàn hảo với cảnh quan xung quanh.
Bản vẽ thiết kế nhà 2 tầng kiểu châu Âu
Thiết kế nhà 2 tầng kiểu Châu Âu nổi bật với sự sang trọng, tinh tế và đầy đủ tiện nghi. Mẫu nhà này thường có cửa sổ lớn, ban công rộng và các chi tiết hoa văn đẹp mắt, tạo nên vẻ đẹp thanh lịch và đẳng cấp.

Các chi tiết hoa văn đẹp mắt, từ các họa tiết chạm khắc tinh xảo trên tường đến các chi tiết trang trí như cột trụ và lan can, tạo nên vẻ đẹp thanh lịch và đẳng cấp cho ngôi nhà. Những yếu tố này không chỉ đơn thuần là trang trí mà còn góp phần thể hiện cá tính và gu thẩm mỹ của gia chủ. Thường xuyên được kết hợp với các vật liệu cao cấp như đá tự nhiên, gỗ sồi hay các loại kính chất lượng cao, thiết kế này không chỉ đẹp mắt mà còn rất bền bỉ theo thời gian.
Bản vẽ nhà 2 tầng với hệ thống cửa kính lớn
Sử dụng cửa kính lớn không chỉ giúp ngôi nhà trở nên hiện đại, mà còn tối ưu hóa ánh sáng tự nhiên, tạo cảm giác thông thoáng và thoải mái. Bản vẽ thiết kế nhà 2 tầng này phù hợp với những gia đình yêu thích sự kết nối với không gian bên ngoài.

Cửa kính lớn tạo cảm giác thông thoáng và rộng rãi, xóa nhòa ranh giới giữa bên trong và bên ngoài, cho phép gia chủ tận hưởng cảnh quan xung quanh từ trong nhà. Thiết kế này rất phù hợp với những gia đình yêu thích sự gần gũi với thiên nhiên, nơi mà mỗi ngày đều có thể ngắm nhìn cây cỏ, hoa lá và bầu trời từ những vị trí khác nhau trong ngôi nhà.
>>> Xem thêm: 3 lưu ý khi cải tạo nhà 2 tầng cũ đẹp như nhà xây mới
Bản vẽ thiết kế nhà 2 tầng với sân vườn
Nếu bạn là người yêu thích thiên nhiên và tìm kiếm một không gian sống hài hòa, bản vẽ nhà 2 tầng kết hợp với sân vườn chắc chắn sẽ mang đến cho bạn sự hài lòng tuyệt đối. Thiết kế này không chỉ đơn thuần là một ngôi nhà, mà còn là một thiên đường xanh mát, nơi mà các thành viên trong gia đình có thể thư giãn, tận hưởng không khí trong lành và sống gần gũi với thiên nhiên.

Mô hình nhà 2 tầng với sân vườn thường được bố trí thông minh, cho phép tận dụng tối đa diện tích đất để tạo ra một khu vực xanh phong phú. Sân vườn có thể được thiết kế với những lối đi nhỏ xinh, những khóm hoa sắc màu, cây xanh và thậm chí là các khu vực nghỉ ngơi ngoài trời, như ghế bành hoặc võng, nơi bạn có thể ngả lưng và thưởng thức tiếng chim hót hay cảm nhận làn gió mát lành.
Bản vẽ nhà 2 tầng đơn giản, tối giản
Những mẫu nhà 2 tầng tối giản thường chú trọng đến công năng sử dụng, loại bỏ các chi tiết rườm rà nhưng vẫn đảm bảo tính thẩm mỹ và tiện nghi. Thiết kế này rất phù hợp cho những ai thích sự gọn gàng, ngăn nắp.

Phong cách tối giản thường tập trung vào việc sử dụng các đường nét đơn giản, màu sắc trung tính và các hình khối rõ ràng. Những yếu tố này không chỉ giúp ngôi nhà trở nên thanh lịch mà còn dễ dàng phối hợp với các món đồ nội thất hiện đại. Mỗi phòng trong ngôi nhà đều được thiết kế với sự chú ý đến chi tiết, từ cách bố trí không gian đến lựa chọn đồ dùng, nhằm tối ưu hóa sự thoải mái và tiện nghi cho gia chủ.
Bản vẽ thiết kế nhà 2 tầng dành cho gia đình đông người
Nhà 2 tầng là giải pháp lý tưởng cho những gia đình có đông thành viên. Bản vẽ thiết kế nhà 2 tầng này giúp bố trí các phòng chức năng một cách hợp lý, đảm bảo không gian sống thoải mái và tiện nghi cho tất cả mọi người.

Việc thiết kế nhà 2 tầng cho gia đình đông người không chỉ chú trọng đến công năng mà còn đảm bảo tính thẩm mỹ và tiện nghi. Những yếu tố như ánh sáng tự nhiên, thông gió và không gian xanh cũng rất được quan tâm, nhằm mang đến một môi trường sống trong lành và dễ chịu.
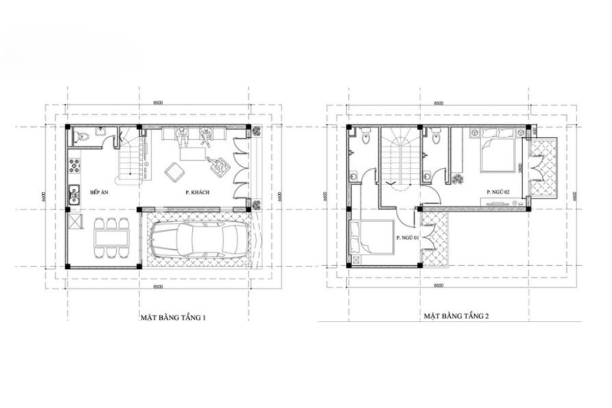
Bản vẽ thiết kế nhà 2 tầng có gara ô tô
Với nhu cầu sở hữu ô tô ngày càng phổ biến, các bản vẽ nhà 2 tầng có gara ô tô ngày càng được ưa chuộng. Thiết kế này đảm bảo an toàn và tiện lợi, đồng thời không ảnh hưởng đến thẩm mỹ tổng thể của ngôi nhà.

Gara ô tô có thể được bố trí ở tầng trệt, liền kề với các khu vực sinh hoạt như phòng khách hoặc bếp, tạo sự thuận tiện tối đa khi di chuyển. Điều này giúp gia chủ dễ dàng đưa xe vào và ra mà không cần phải đi vòng quanh, tiết kiệm thời gian và công sức mỗi khi ra ngoài.
Với hơn 50 mẫu bản vẽ thiết kế nhà 2 tầng được yêu thích và ưa chuộng nhất hiện nay, hy vọng bạn đã có thêm nhiều lựa chọn hoàn hảo để hiện thực hóa ước mơ về ngôi nhà của mình.
Cùng JAMA HOME khám phá và lựa chọn cho mình một bản vẽ thiết kế nhà 2 tầng ưng ý nhất, để bắt đầu hành trình xây dựng tổ ấm hoàn hảo và tràn đầy yêu thương! Nếu bạn đang muốn tìm kiếm công ty cải tạo sửa chữa nhà và tư vấn xây dựng thì hãy gọi ngay cho chúng tôi để được hỗ trợ ngay
