Bản vẽ xây dựng là gì? Tìm hiểu về các loại bản vẽ cơ bản

Cách đọc bản vẽ kiến trúc chuẩn

Bản vẽ xây dựng là gì? Bản vẽ xây dựng không chỉ là tài liệu hướng dẫn thi công, mà còn là căn cứ để đảm bảo công trình tuân thủ các tiêu chuẩn kỹ thuật và quy định pháp luật. 

Trong bài viết này, Jama Home sẽ cung cấp thông tin chi tiết để trả lời cho câu hỏi “bản vẽ xây dựng là gì?“, đồng thời giúp bạn biết cách đọc bản vẽ, và hiểu rõ về quyền của người dân trong việc tự thiết kế bản vẽ xây dựng cho nhà ở riêng lẻ. Đừng bỏ lỡ nhé!

Tìm hiểu xem bản vẽ xây dựng là gì?

Bản vẽ xây dựng là gì? Nó là một công cụ quan trọng trong quá trình thi công, thiết kế và xây dựng các công trình. Đây là bộ tài liệu bằng hình ảnh, biểu đồ giúp các bên liên quan hiểu rõ về hình thức, kích thước, và cách thức lắp đặt của các hạng mục trong công trình. Mỗi công trình xây dựng đều cần phải có bản vẽ chi tiết, giúp đảm bảo rằng việc thi công diễn ra đúng theo kế hoạch và đạt được chất lượng mong muốn.

Bản vẽ xây dựng là gì ?
Bản vẽ xây dựng là gì?

Các loại bản vẽ xây dựng bạn cần biết

Ngoài câu hỏi bản vẽ xây dựng là gì thì rất nhiều người còn chưa biết có bao nhiêu loại bản vẽ trong xây dựng. Cùng Jama Home tìm hiểu các loại bản vẽ xây dựng ngay nhé!

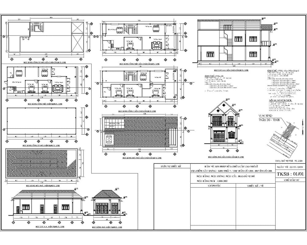
Bản vẽ xin phép xây dựng

Đây là loại bản vẽ được nộp cho cơ quan có thẩm quyền để xin cấp phép xây dựng công trình. Nội dung của bản vẽ này thường bao gồm mặt bằng tổng thể, mặt đứng, mặt cắt và các hạng mục cần thiết để đảm bảo công trình tuân thủ quy định về xây dựng.

Mẫu bản vẽ xin giấy phép xây dựng
Mẫu bản vẽ xin giấy phép xây dựng

Ngoài ra, bản vẽ xin phép xây dựng cũng cần phải đi kèm với các tài liệu hỗ trợ như báo cáo địa chất, đánh giá tác động môi trường và các giấy tờ liên quan khác. Tất cả những yếu tố này không chỉ giúp việc xin phép diễn ra thuận lợi mà còn tạo điều kiện để công trình được xây dựng một cách chuyên nghiệp và hợp pháp. Việc hiểu rõ bản vẽ xây dựng là gì và vai trò của nó trong quy trình xin phép sẽ giúp bạn chuẩn bị tốt hơn cho dự án của mình.

>>> Đọc thêm: Liệu có cần xin giấy phép xây dựng cho nhà cấp 4 không? Cách làm thủ tục xin giấy phép

Bản vẽ thiết kế xây dựng

Bản vẽ thiết kế xây dựng là bộ tài liệu kỹ thuật chi tiết, từ kiến trúc, kết cấu đến hệ thống điện, nước. Đây là công cụ chính để hướng dẫn thi công và kiểm soát quá trình xây dựng, đảm bảo rằng công trình được thực hiện đúng với kế hoạch.

Bản vẽ thiết kế xây dựng là gì?
Bản vẽ thiết kế xây dựng là gì?

Hướng dẫn cách đọc bản vẽ xây dựng

Đọc bản vẽ xây dựng là một kỹ năng quan trọng trong lĩnh vực xây dựng, tuy nhiên, không phải ai cũng dễ dàng nắm bắt. Việc này không chỉ đơn thuần là việc nhìn vào các ký hiệu và con số; nó còn liên quan đến việc hiểu rõ từng phần của bản vẽ để có cái nhìn tổng quát và chính xác về công trình. Để thực hiện điều này một cách hiệu quả, trước tiên, bạn cần hiểu rõ bản vẽ xây dựng là gì và các yếu tố cấu thành của nó. 

Đọc bản vẽ kiến trúc đúng cách làm sao?

Bản vẽ kiến trúc là một phần thiết yếu trong quá trình thiết kế và xây dựng công trình. Nó chủ yếu mô tả hình thức bên ngoài và bố trí không gian của công trình, giúp các bên liên quan có cái nhìn rõ ràng về cách mà công trình sẽ được hình thành. Bản vẽ này không chỉ đơn thuần thể hiện các yếu tố hình học mà còn truyền tải ý tưởng thiết kế, phong cách kiến trúc và cảm xúc mà công trình dự kiến sẽ mang lại.

Cách đọc bản vẽ kiến trúc chuẩn
Cách đọc bản vẽ kiến trúc chuẩn

Ngoài ra, việc xác định vị trí của cửa sổ, cửa ra vào cũng là một phần quan trọng trong bản vẽ kiến trúc. Những yếu tố này không chỉ tạo nên sự kết nối giữa các không gian mà còn ảnh hưởng đến ánh sáng tự nhiên và thông gió trong nhà. Hơn nữa, cách phân chia các không gian bên trong, như phòng khách, phòng ngủ hay khu vực bếp, sẽ quyết định đến tính tiện nghi và chức năng sử dụng của công trình.

Hướng dẫn cách đọc bản vẽ kết cấu kiến trúc

Bản vẽ kết cấu là một phần quan trọng trong hồ sơ thiết kế xây dựng, thể hiện hệ thống móng, cột, dầm và các cấu kiện chính chịu lực của công trình. Để hiểu rõ hơn về bản vẽ kết cấu, trước tiên bạn cần nắm được bản vẽ xây dựng là gì và vai trò của nó trong toàn bộ quá trình thiết kế.

Hướng dẫn đọc bản vẽ kết cấu kiến trúc đúng nhất
Hướng dẫn đọc bản vẽ kết cấu kiến trúc đúng nhất

Bản vẽ này không chỉ cung cấp cái nhìn tổng thể về cấu trúc công trình mà còn đảm bảo rằng tất cả các yếu tố kỹ thuật được thực hiện một cách chính xác, từ đó đảm bảo tính an toàn và bền vững.

Cách đọc bản vẽ điện, nước

Bản vẽ điện, nước là một phần thiết yếu trong hồ sơ thiết kế xây dựng, mô tả hệ thống cấp điện và cấp thoát nước cho công trình. Việc đọc và hiểu bản vẽ này không chỉ giúp bạn hình dung rõ ràng hơn về cách các hệ thống này hoạt động mà còn đảm bảo rằng công trình sẽ được xây dựng và vận hành một cách hiệu quả, an toàn.

Đọc bản vẽ điện, nước chuẩn nhất hiện nay
Đọc bản vẽ điện, nước chuẩn nhất hiện nay

Bản vẽ nước sẽ chỉ ra các hệ thống ống nước, bao gồm cả ống cấp nước và ống thoát nước. Bạn cần chú ý đến kích thước và loại ống được sử dụng, cũng như cách chúng kết nối với nhau. Điều này không chỉ liên quan đến việc cấp nước cho các khu vực trong công trình mà còn ảnh hưởng đến khả năng thoát nước, giúp ngăn ngừa các vấn đề như ngập úng hoặc rò rỉ.

Liệu xây nhà ở riêng lẻ có cần phải có bản vẽ xây dựng không?

Khi đã hiểu được bản vẽ xây dựng là gì, bạn sẽ nhận thức rõ tầm quan trọng của nó với dự án của mình.Theo quy định pháp luật, khi xây dựng nhà ở riêng lẻ, việc có bản vẽ xây dựng là bắt buộc. Bản vẽ này sẽ được sử dụng để xin phép xây dựng và làm căn cứ để kiểm tra việc thi công có tuân thủ quy định về xây dựng hay không. Việc thiếu bản vẽ có thể dẫn đến các vấn đề pháp lý và chất lượng thi công không được đảm bảo.

Nhà ở riêng lẻ có cần bản vẽ xây dựng không?
Nhà ở riêng lẻ có cần bản vẽ xây dựng không?

Người dân có quyền tự thiết kế bản vẽ xây dựng nhà ở riêng của mình không?

Sau khi tìm hiểu bản vẽ xây dựng là gì, chắc một số người có dự định sẽ tự thiết kế theo ý mình để tiết kiệm chi phí. Theo luật hiện hành, người dân có quyền tự thiết kế bản vẽ xây dựng cho nhà ở riêng lẻ của mình, miễn là bản vẽ đó tuân thủ các tiêu chuẩn và quy định về xây dựng.

Tuy nhiên, nếu công trình có quy mô lớn hoặc phức tạp, việc sử dụng dịch vụ của các kiến trúc sư hoặc đơn vị thiết kế chuyên nghiệp là cần thiết để đảm bảo tính an toàn và tuân thủ pháp luật.

Kết luận

Hy vọng bài viết ở trên đã bao gồm những thông tin chi tiết giúp bạn trả lời câu hỏi “bản vẽ xây dựng là gì?” và hiểu rõ hơn về các loại bản vẽ cơ bản trong quá trình xây dựng. Ngoài ra, cũng mong rằng những thông tin hữu ích này sẽ trở thành nguồn tham khảo giá trị, giúp bạn trong quá trình lên kế hoạch và xây dựng ngôi nhà của mình. 

JAMA HOME là một trong những công ty cải tạo nhà và xây dựng top đầu tại TP Hồ Chí Minh. Nếu bạn đang cần tìm đơn vị thi công uy tín thì đừng ngần ngại liên hệ với JAMA HOME để được tư vấn và hỗ trợ thiết kế bản vẽ xây dựng chuyên nghiệp ngay nhé!